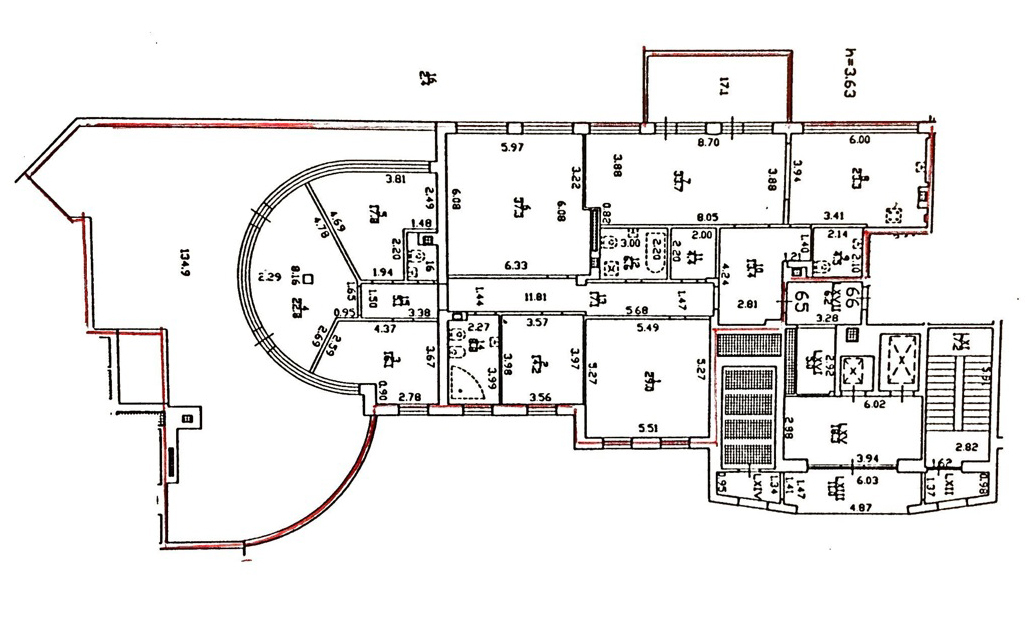
Объект "Парадная". БТИ план
Объект "Парадная". Утвержденный эскиз
Объект "Парадная". Кабинет, ручной эскиз
Объект "Парадная". Кабинет, рабочие чертежи
Объект "Парадная". Кабинет, фото
Объект "Парадная". Кабинет, ручной эскиз
Объект "Парадная". Кабинет, 3D
Объект "Парадная". Кабинет, рабочие чертежи